QUADRILOCALE VISTA MARE CON GIARDINO E GRANDE BOX

+17
  • Tipo di immobileAppartamento
  • Prezzo€ 670.000,00
  • Numero locali4
  • Numero camere4
  • Numero bagni2
  • Superficie85 mq

Appartamento, Alassio, Collina

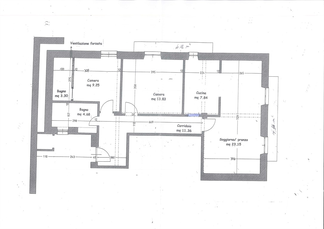
4 camere, 2 bagni, 85 metri quadrati

Nella splendida cornice di Parco Fuor del Vento, alla sommità di Via Virgilio, abbiamo il piacere di presentare questo elegante alloggio con una meravigliosa vista mare. Attraverso una piccola corte privata si accede alla zona ingresso che affaccia su un disimpegno da cui parte il corridoio che conduce alle due camere (una con bagno esclusivo), al secondo bagno, al doppio salone ed alla cucina. La zona living è arricchita da due balconi con vista panoramica.
Pavimentazione in parquet, termoautonomo, parzialmente arredato.
Adiacente alla proprietà troviamo un giardino di proprietà esclusiva di circa 200 mq. con una bellissima vista mare.
Nel prezzo anche un box di 30Mq con soppalco (h.200), un posto auto ed un ripostiglio.

Informazioni

  • Codice annuncio08VE408
  • CittaAlassio
  • IndirizzoVia Virgilio, 26
  • Tipo di contrattoVendita
  • PianoRialzato
  • Superficie85 mq
  • Numero locali4
  • Numero camere4
  • Numero bagni2
  • RiscaldamentoAutonomo
  • Tipo di cucinaCucina semi abitabile
  • GiardinoPrivato
  • Box / Posto autoSingolo

 

Richiedi informazioni

Se vuoi saperne di più compila il form seguente.
I campi contrassegnati con asterisco sono obbligatori

Nome e Cognome *
Email *
Telefono
Messaggio *

Nota Informativa per invio comunicazioni

 

Annunci simili...